Inmobiliaria
Real Estate

Agence Immobilière
Immobilienverkauf
     

 


 

es 1228
Einfamilienhaus (145m2) mit 2 oder 3 Schlafzimmer, Baujahr 2009           l’Escala – Riells de Dalt      349.000 €


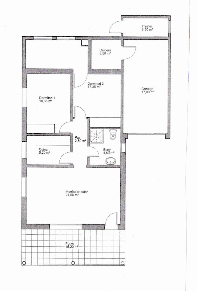
Diese Immobilie zeichnet sich durch eine Wohnfläche von 145 m2 aus. Sie wurde auf einem abgeschlossenen Grundstück von 294 m2 errichtet und bietet eine privilegierte Wohnumgebung. Die Immobilie wurde 2009 erbaut und zeichnet sich durch eine Architektur auf drei Ebenen aus, die eine optimierte Wohnfläche bietet.
Das Untergeschoss, das über eine Außenrampe zugänglich ist, wird derzeit als 35 m² große Garage genutzt.
Im Erdgeschoss gelangt man über eine Eingangshalle in ein helles Wohn- und Esszimmer mit Kamin und direktem Zugang zur Terrasse und in den Garten. Die Küche ist komplett ausgestattet und hat einen Zugang zur Terrasse. Außerdem gibt es ein Badezimmer mit Badewanne und einen Abstellraum. Der Grundriss des Hauses bietet die Möglichkeit, ein drittes Schlafzimmer einzurichten.
Im Obergeschoss befinden sich zwei Schlafzimmer, beide mit großen Einbauschränken ausgestattet, sowie ein Badezimmer mit Dusche. Vom Flur aus hat man Zugang zu einer großen Terrasse.
Das Haus ist mit einer Elektroheizung sowie einer Alarmanlage ausgestattet. Es befindet sich in einer ruhigen und attraktiven Wohngegend, die die perfekte Kombination aus Erholung und Dorfnähe bietet. Das Zentrum von Riells mit seinem weitläufigen Sandstrand und zahlreichen Einkaufsmöglichkeiten ist in etwa 900 m erreichbar. Nur 3 Minuten entfernt befindet sich zudem ein Naherholungsgebiet, dass sich ideal für Spaziergänge, sportliche Aktivitäten oder einfach nur zur Entspannung anbietet.
Das Objekt überzeugt durch seine solide Bauqualität und einen gepflegten Zustand. Die sonnige Terrasse und die Gartenbereiche laden zu entspannten Stunden ein. Das Objekt ist ganzjährig bewohnbar oder eignet sich ideal als Feriendomizil.

 

 


 

Unser Angebot:  L`Escala – Brancs   es1247
238.000 €

 L`Escala - COLOM  es1159
239.000€

L’Escala–MONTSENY es1149   239.000 €

L’Escala – PJ Riells  es1185
249.000 €

L`Escala - Civada 
269.000 €

l‘Escala – C/Coloma
es1229       289.000 €

 l’Escala – Lluria    es1241 339.000 €

 l’Escala – Riells de Dalt      es1228    349.000 €

 L’Escala- SANT MARTI  es1207     350.000 €

    L`Escala- SANT MARTI  es1206       389.000 €

L'Escala–Riells    es1233
399.000 €

L'Escala–C/Olives es1216
429.000€

 L’Escala – Puig Sec  es1156 
450.000 €

L`Escala –Sant Marti  es1022 650.000 €